Logo Agenzia Le Ville
Agenzia Le Ville Pietrasanta
  • HOME
  • AGENZIA
  • VENDITE
  • ESCLUSIVE
  • AFFITTI
  • VENDERE CASA
  • CONTATTI

Pietrasanta

Marina di Pietrasanta

Forte dei Marmi

Camaiore

Lido di Camaiore

Viareggio


Via G. Carducci, 121 - 55045 Pietrasanta (LU)


+39 0584 745294
+39 347 4260726

English flag

Terreno residenziale in vendita a Massarosa - Rif: 3032

Massarosa

Terreni edificabili - Foto 1
Terreni edificabili - Foto 1
Terreni edificabili - Foto 1
Terreni edificabili - Foto 1

Dettagli

  • Riferimento3032
  • ContrattoVendita
  • TipologiaTerreno Residenziale
  • LocalitàMassarosa
Prezzo: € 130.000 - Trattabile
Numero Camere: 3
Numero Bagni: 2
Superficie: 125 mq
Giardino: Privato
Classe Energetica: In fase di rilascio
Contratto: Vendita
Tipologia: Terreno Residenziale
Numero Vani: 4.0
Posto Auto: Posto Auto
Cucina: A vista
Stato: Nuova Costruzione

Descrizione

TERRENI EDIFICABILI CON PROGETTO APPROVATO – PIAN DI MOMMIO (LU)
In località Pian di Mommio, in posizione ottimale, a breve distanza da tutti i principali servizi, proponiamo in vendita ultimi 3 lotti edificabili facenti parte di un intervento di lottizzazione già definito e approvato che prevede la realizzazione di 6 villette unifamiliari.
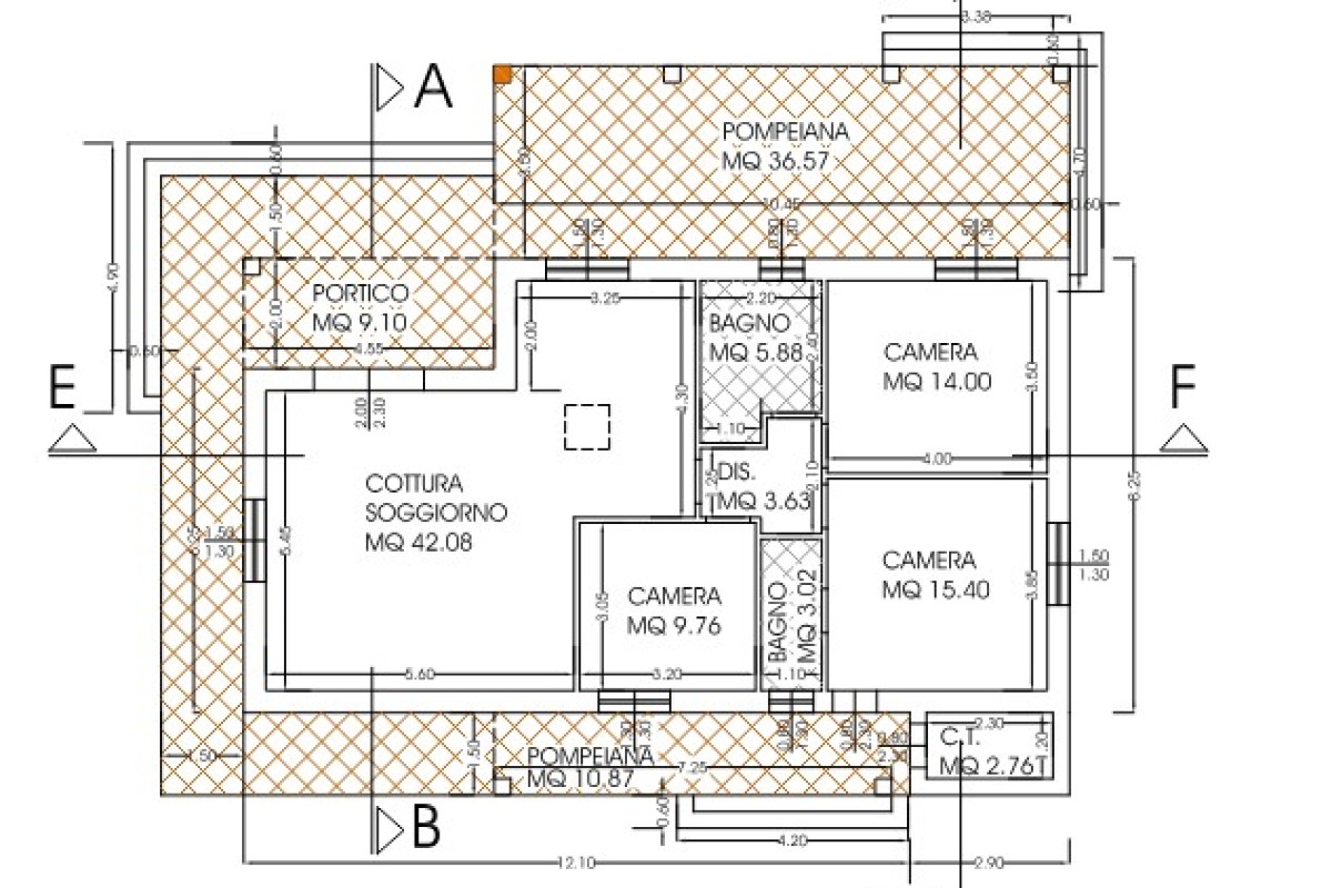
Il progetto consente la realizzazione su ogni lotto, di circa 600 mq, di una villa unifamiliare di 115 mq tutta su un unico piano, così sviluppata:
Porticato di ingresso
Zona giorno con soggiorno e angolo cottura open-space
Tre camere da letto
Due servizi igienici
Giardino esclusivo su quattro lati
Posti auto interni alla proprietà
Opere accessorie e ampliamenti
Possibilità di realizzare garage con superficie superiore a 20 mq
Possibilità di taverna seminterrata
Oneri di urbanizzazione e costi concessori a carico della parte acquirente.


Distanze

Centro:700m
Mare:3.0km
image description

Agenzia Immobiliare 'Le Ville'

Pietrasanta (LU) Chi siamo

+39 0584 745294

Ho letto, compreso e accetto la privacy policy.

Ricevi immobili simili a questo da Agenzia Immobiliare 'Le Ville'.

Ultimi Inserimenti

  • Singola con giardino e posto a

    Casa Indipendente in Ven...

    235.000 €

    Pietrasanta

  • In affitto estivo - appartamen

    Appartamento in Affitto

    10.000 €

    Pietrasanta - Marina Di Pietrasanta

  • Vallecchia - appartamento in a

    Appartamento in Affitto

    Tratt. in Agenzia

    Pietrasanta

  • Marina di pietrasanta in vendi

    Villa in Vendita

    860.000 €

    Pietrasanta - Marina Di Pietrasanta

English flag
logo footer Agenzia Le Ville
Agenzia Immobiliare 'Le Ville' di Pennini Rossella, Via G. Carducci, 121 - 55045 Pietrasanta (LU)
P.Iva: 01632390462
Telefono: +39 0584 745294
Telefono: +39 347 4260726
vedi il nostro indirizzo email

Link utili

  • Home
  • Agenzia
  • Immobili in Vendita
  • Immobili in Esclusiva
  • Immobili in Affitto
  • Case in vendita Marina di Pietrasanta
  • Affitti Estivi Marina di Pietrasanta
  • Vendere Casa
  • Contatti
  • Cookie Policy
  • Privacy Policy
  • Modifica preferenze cookies

Ultimi inserimenti

  • Singola con giardino e posto a

    Singola con giardino e posto auto a due passi dal centro storico di pietrasanta

    235.000 €

  • In affitto estivo - appartamen

    In affitto estivo - appartamento con ingresso indipendente e giardino - rif 3030

    10.000 €

  • Vallecchia - appartamento in a

    Vallecchia - appartamento in affitto di nuova ristrutturazione - rif 3029

    Tratt. in Agenzia

Software Immobiliare By SIT - Realizzazione sito By Sit Versilia
Copyright © 2024 - 2026 agenzialeville.it by Agenzia Immobiliare 'Le Ville'. Tutti i diritti riservati

  • Scrivici senza impegno
Logo Agenzia Immobiliare 'Le Ville'

Agenzia Immobiliare 'Le Ville'

0584 745294 347 4260726

Chiama
Scrivici